Projekt domu Projekt domu Surażkowo 4 – Nowoczesna podlaska chata
Surażkowo 4 – Tradycyjny urok Podlasia w nowoczesnym wydaniu 🏡
Surażkowo 4 to wyjątkowy projekt niedużego domu z użytkowym poddaszem, który jest hołdem dla tradycyjnej architektury regionalnej. Jeśli marzysz o domu z duszą, który naturalnie wtapia się w krajobraz, a jednocześnie oferuje współczesny komfort, ten projekt jest dla Ciebie. 🌿
Funkcjonalność i elastyczność wnętrza 📐
Mimo niedużych rozmiarów, dom oferuje przemyślany układ dla 4-5 osobowej rodziny:
- Parter (strefa życia i wypoczynku): Sercem domu jest otwarta część dzienna, w której centralne miejsce zajmuje klimatyczny kominek. Znajdziemy tu również dwie sypialnie, łazienkę oraz sprytnie ukrytą pod schodami „piwniczkę” – idealną na domowe zapasy 🍯.
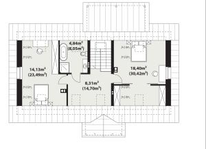
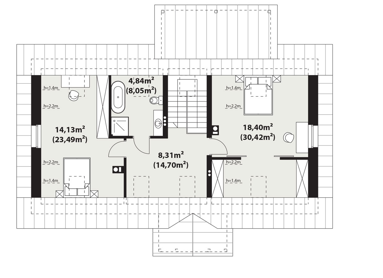
- Poddasze (strefa prywatna): Wyżej zlokalizowano dwie kolejne, przestronne sypialnie oraz drugą łazienkę.
- Aranżacja bez granic: Większość ścian wewnętrznych to ściany działowe, co daje Ci niemal nieograniczone możliwości zmiany układu pomieszczeń w przyszłości.
Bliskość natury na wyciągnięcie ręki ☕
Projekt wyróżnia się dwoma wyjątkowymi strefami zewnętrznymi:
- Zadaszony ganek-weranda: Zaprasza do środka i stanowi idealne miejsce na poranną kawę, chroniąc przed deszczem czy słońcem ☀️.
- Zadaszony taras: Położony od strony ogrodu, staje się naturalnym przedłużeniem salonu podczas letnich spotkań z bliskimi.
Technologia i energooszczędność 🛠️
Dom został zaprojektowany w technologii murowanej (pustak ceramiczny) z solidnym dociepleniem wełną mineralną. Tradycyjny charakter podkreśla elewacja z szalówki oraz drewniany strop. Standardowo budynek wyposażony jest w nowoczesną pompę ciepła, co w połączeniu z kominkiem czyni go domem tanim w eksploatacji i przyjaznym środowisku 🌍.
Podsumowanie atutów:
- Autentyczny styl: Architektura nawiązująca do tradycyjnych domów podlaskich.
- Bogaty program funkcjonalny: Aż 4 sypialnie na niewielkiej powierzchni.
- Możliwość personalizacji: Elastyczny układ ścian działowych.
- Komfort zewnętrzny: Zadaszona weranda oraz taras w standardzie.
- Nowoczesne ogrzewanie: Pompa ciepła zapewniająca niskie rachunki.
Idealny dom dla kogoś, kto chce poczuć klimat sielskiego Podlasia, ale woli mieć piwniczkę na wino pod schodami niż pod podłogą w kuchni! 🍷
Technologia budowy domu Surażkowo 4
Dach: dachówka, blachodachówka lub blacha na rąbek
Elewacje: szalówka
Strop: drewniany
Ściany wewnętrzne: murowane
Ściany zewnętrzne: dwuwarstwowe, pustak ceramiczny, docieplony wełną mineralną
Ogrzewanie: kocioł gazowy lub kocioł na paliwo stałe
Dodatkowe informacje
Projekt dostępny także we innych wersjach: Surażkowo, Surażkowo 2, Surażkowo 3
Autor projektu: Archetyp
Specyfikacja projektu
Dom
| Powierzchnia użytkowaDla domów parterowych: Suma powierzchni użytkowych wszystkich pomieszczeń bez garażu. Dla domów z poddaszem (dach spadzisty): Suma powierzchni użytkowych wszystkich pomieszczeń bez garażu i strychu. Na poddaszu, pod skosami dachu powierzchnię użytkową liczono wg zasady: - powyżej 2,2m wysokości pomieszczenia powierzchnia liczona w 100%, - pomiędzy 1,4m a 2,2m w 50%, - poniżej 1,4m powierzchnia nie jest brana pod uwagę. | 126.89 m² |
|---|---|
| Powierzchnia zabudowyPowierzchnia terenu, zajęta przez budynek w stanie wykończonym, bez tarasów, schodów zewnętrznych i podjazdów (PN-ISO 9836: 1997) | 116.86 m² |
| KubaturaObjętość budynku, liczona zgodnie z normą PN-ISO-9836:1997, czyli wraz z przegrodami zewnętrznymi i wewnętrznymi (ścianami, stropem, dachem i podmurówką). | 687 m³ |
| Wysokość kalenicyMaksymalna wysokość budynku mierzona od poziomu terenu przy wejściu do najwyżej położonego punktu dachu. | 7.5 m |
| Wysokość parteru | 2.92 m |
| Wysokość piętra | 3.06 m |
| Wysokość ścianki | 0.49 m |
Pomieszczenia
| Ilość sypialni (bez salonu) | 4 |
|---|---|
| Ilość łazienek (w tym toalet) | 2 |
Dach
| Powierzchnia dachu | 218.47 m² |
|---|---|
| Kąt nachylenia dachu | 40 ° |
Działka
| Minimalna długość działki | 16.95 m |
|---|---|
| Minimalna szerokość działki | 22.70 m |
| Minimalna powierzchnia działki | 384.77 m² |





















5921
4368
4074
3645
2371
2273



